Modernes 5-Zimmer-Einfamilienhaus mit Doppelgarage in bevorzugter Feldrandlage

Ort
38302 Wolfenbüttel
Kaufpreis 390.000 €
Zimmer 5
Wohnfläche ca. 137,00 m²

Objektbeschreibung

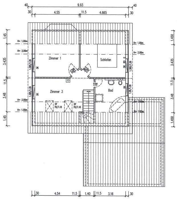
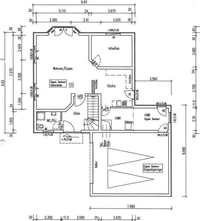
Das großzügige Wohnhaus wurde 1999 in massiver Bauweise errichtet. Die Wohnfläche beträgt ca. 137 m² und verteilt sich auf insgesamt 5 Zimmer.

Über das Entrée des Hauses mit einem zentralen Treppenhaus werden Erd- und Obergeschoss erschlossen. Das Erdgeschoss beherbergt ein Bad mit großer Dusche, das großzügige Wohn-/ Esszimmer mit ca. 39 m² sowie die Küche (mit angeschlossenem HWR). Die Küche besitzt einen Ausgang zur nördlich ausgerichteten überdachten Terrasse. Vom Wohnzimmer geht ein weiteres Zimmer ab, was zum Bsp. als Arbeits- oder Gästezimmer genutzt werden kann. Vom Wohnzimmer gelangt man auch auf die geräumige 2. Terrasse (süd-west Ausrichtung) und genießt eine wunderbare Privatsphäre im Garten. Im Obergeschoss wurden ein Schlafzimmer, ein Kinderzimmer, ein Raum mit Galerie sowie Badezimmer mit Wanne arrangiert. Die Galerie kann mit wenig Aufwand in ein abgeschlossenes Zimmer umgebaut werden. Das Pachtgrundstück mit einer Größe von ca. 1.001 m² ist vorteilhaft geschnitten und befindet sich zurückversetzt zur Straße. Auf dem Grundstück befinden sich ein Gartenhaus, ein Gewächshaus, ein Gerätehaus sowie eine Zisterne. Der aktuelle monatliche Pachtzins beträgt: € 265.
Mehr anzeigenWeniger anzeigen

Lage

Die Immobilie befindet sich in bevorzugter Feldrandlage im östlichsten Stadtteil Ahlum der ca. 52.700 Einwohner zählenden Kreisstadt Wolfenbüttel, ca. 5 km vom Stadtzentrum entfernt.

Wolfenbüttel verfügt über eine hervorragende Infrastruktur, bestehend aus diversen Nahver-sorgern, Kitas, Klinikum, Schulen, Apotheken, ärztlicher Versorgung und zahlreichen weiteren Einrichtungen des täglichen Bedarfes. Ein kleines Gewerbegebiet mit Baumarkt, Edeka, DM-Drogerie befindet sich nur 4 PKW-Fahrminuten entfernt. Für den Großeinkauf ist Braunschweig nach nur 15 km erreicht. Die Umgebungs-bebauung ist durch weitere hochwertige Wohnhäuser geprägt.

Die Anbindung an den ÖPNV erfolgt durch eine fußläufig entfernte Bushaltestelle.
Ort
38302 Wolfenbüttel
Wohnfläche
ca. 137,00 m²
Nutzfläche
ca. 189,00 m²
Grundstücksfläche
ca. 1.001,00 m²
Anzahl Zimmer
5
Anzahl Stellplätze
2
Kaufpreis
390.000 €
Provisionspflichtig
Ja
Käuferprovision
2,97
Provisionshinweis
Bei Zustandekommen des notariellen Kaufvertrages durch unseren Nachweis und/oder Vermittlung hat der Käufer eine Maklerprovision i.H. von 2,97 % inkl. gesetzlich geltender MwSt. vom endgültigen Erwerbspreis an uns zu zahlen. Mit dem Verkäufer besteht eine gleichlautende Vereinbarung. Fälligkeit bei Abschluss des notariellen Kaufvertrages.
Objektart
Haus
Nutzungsart
Wohnen
Verfügbarkeit
Verkauft
Vermarktungsart
Kauf
Baujahr
1999
Letzte Modernisierung
2018
Zustand
Gepflegt
Verkaufstatus
Verkauft
Stellplatz
Ja

Ausstattungsbeschreibung

Die Räume präsentieren sich aufgrund der zahlreichen Fenster (isolierverglast) hell und einladend. Die Konzeption des Grundrisses sowie die Ausstattung der Immobilie mit ebenerdig gefliester Dusche/ Wanne, Kaminvorrüstung und Fliesen- bzw. Laminatböden entspricht einem hohen Wohnkomfort.

Beheizt wird das Gebäude über eine Gaszentralheizung (Baujahr 2018) sowie über Heizkörper. Die Bäder verfügen über eine Fußbodentemperierung.
Gebäude und Grundstück präsentieren sich in einem sehr gut unterhaltenen und gepflegten Zustand.

Jetzt Kontakt aufnehmen

Sie sind interessiert?

Dann nehmen Sie gerne Kontakt mit uns auf. Wir freuen uns auf Sie.

Immobilienbotschaft

5,0 Sterne