5-Zimmer-Reihenhaus mit Einbauküche, Garage und Gartenhaus in Dibbesdorf

Ort
38108 Braunschweig
Adresse
Schönebergstraße 47
Kaufpreis 360.000 €
Zimmer 5
Schlafzimmer 3
Wohnfläche ca. 125,00 m²

Objektbeschreibung

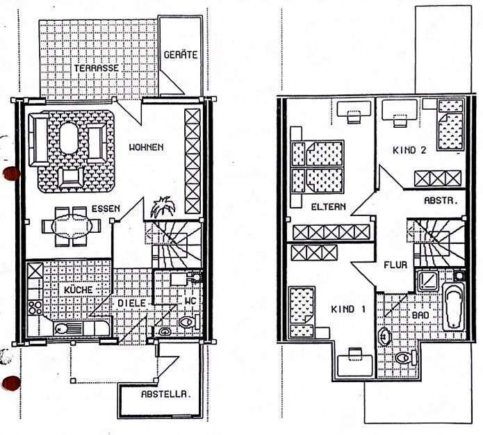
Das moderne Reihenhaus wurde 1988 in Holzständerbauweise mit holländischem Klinker und Kerndämmung errichtet und verfügt auch heute noch über einen hohen Wohnkomfort. Das Haus ist nicht unterkellert und bietet auf insgesamt 3 Etagen ein großzügiges Raumangebot.

Das Raumkonzept ist praktisch und durchdacht. Vom zentralen Flur im Erdgeschoss gelangt man in die abgeschlossene Küche, zum Gäste-WC mit Dusche sowie in den offen gestalteten Wohn- und Essbereich mit Ausgang zur südlich ausgerichteten Terrasse. Über das zentrale Treppenhaus mit Garderobe gelangt man in das Obergeschoss. Hier wurden ein Badezimmer mit Wanne und Dusche sowie 3 weitere Zimmer mit Raumgrößen zwischen 11 m² - 17 m² sowie ein Abstellraum arrangiert. Das im Jahr 1992 ausgebaute Dachgeschoss mit kleinem Nebenraum rundet das vielseitige Platzangebot ab.

Auf dem Grundstück befinden sich ein Abstellraum vor dem Haus sowie ein Geräteraum und ein Gartenhaus im Garten. Die Garage im Innenhof ist nach wenigen Schritten erreicht. Die Nachbarschaft ist hilfsbereit und freundlich.
Mehr anzeigenWeniger anzeigen

Lage

Das angebotene Reihenhaus befindet sich in nachgefragter Wohnlage im östlichen Stadtteil Dibbesdorf, nur etwa 8 km (bzw. ca. 15 PKW-Fahrminuten) vom Stadtzentrum entfernt. Im direkten Umfeld befinden sich weitere hochwertige Einfamilien- und Reihenhäuser. Ein Nahversorger (EDEKA) sowie eine KITA und ein Bio-Hofladen sind fußläufig erreichbar. Die Anbindung an den ÖPNV ist durch verschiedene Buslinien (230, 417 und 433) sowie die nur ca. 2,5 km entfernte Auffahrt zur A2 gewährleistet. Der Standort verfügt über eine direkte Verbindung nach Wolfsburg.
Ort
38108 Braunschweig
Adresse
Schönebergstraße 47
Wohnfläche
ca. 125,00 m²
Grundstücksfläche
ca. 216,00 m²
Anzahl Zimmer
5
Anzahl Schlafzimmer
3
Anzahl Badezimmer
2
Anzahl Stellplätze
1
Kaufpreis
360.000 €
Provisionspflichtig
Ja
Käuferprovision
2,97 %
Provisionshinweis
Bei Zustandekommen des notariellen Kaufvertrages durch unseren Nachweis und/ oder Vermittlung hat der Käufer eine Maklerprovision i.H. von 2,97 % inkl. gesetzlich geltender MwSt. vom endgültigen Erwerbspreis an uns zu zahlen. Mit dem Verkäufer besteht eine gleichlautende Vereinbarung. Fälligkeit bei Abschluss des notariellen Kaufvertrages.
Objektart
Reihenmittelhaus
Nutzungsart
Wohnen
Verfügbarkeit
Verkauft
Vermarktungsart
Kauf
Baujahr
1988
Zustand
Gepflegt
Verkaufstatus
Verkauft
Stellplatz
Ja

Ausstattungsbeschreibung

Das Gebäude ist aufgrund der ökologischen Bauweise mit Holz, Klinker und Dämmung energie-effizient und sparsam. Die monatlichen Kosten für Erdgas (Heizung und Warmwasser)
beliefen sich zuletzt auf € 120.

Alle Zimmer sind aufgrund der Fenster hell und freundlich. Die Fenster im Ober- und Dachgeschoss verfügen jeweils über manuelle Rollläden. Die Badezimmer sind mit Boden- und Wandfliesen ausgestattet.

Weitere Beschreibung

Die Objektangaben wurden nach bestem Wissen und Gewissen erstellt. Grundlage der vorstehenden Angaben sind Informationen und/oder Unterlagen, welche uns von der/ vom Eigentümer(in) oder Dritten zur Verfügung gestellt worden sind. Eine Gewähr für die Richtigkeit der Angaben kann daher nicht übernommen werden. Irrtum und Zwischenverkauf vorbehalten. Es gelten unsere
Allgemeinen Geschäftsbedingungen.

Jetzt Kontakt aufnehmen

Sie sind interessiert?

Dann nehmen Sie gerne Kontakt mit uns auf. Wir freuen uns auf Sie.

Immobilienbotschaft

5,0 Sterne